Flavie Serrurier Négociatrice
Télécharger la fiche

Maison 10 pièce(s) 6 chambre(s) 232 m²

Douai (59500)
250 000 € Référence SFVMA250000632

A propos de ce bien

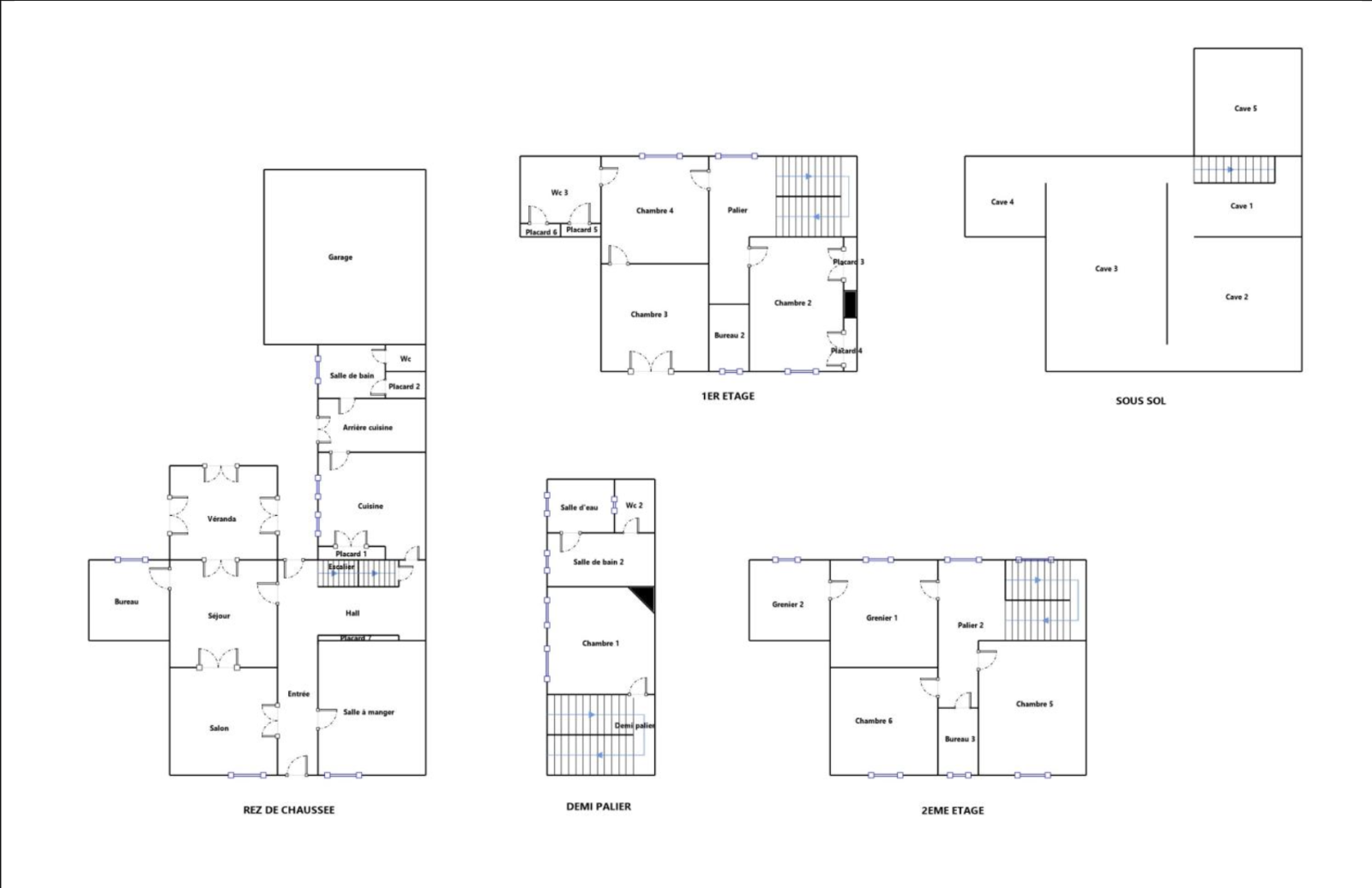
Maison 10 pièces 232 m² DOUAI-centre ville-maison bourgeoise-7 chambres-garage-cave-jardinet


Sur la commune de DOUAI, à moins d'un kilomètre et demi de la gare, à proximité immédiate des transports en commun, écoles, commerces, axes autoroutiers je vous propose de venir découvrir ce bijou qui n'attend plus que vous pour retrouver son charme d'antan grâce à ses moulures, carreaux de ciments, cimaises, éléments architecturaux sculptés ...


Cette demeure vous propose sur le rez de chaussée une pièce de vie et son espace lecture/bibliothèque ou bureau d'environ 35 m2, une charmante véranda avec vue sur le jardinet d'environ 45 m2, une pièce pouvant être utilisée en salon cocooning, chambre, salle de jeux, bureau ....., une cuisine séparée donnant accès à une arrière cuisine puis à une salle de bain avec wc.


Au premier étage, vous disposerez de quatre chambres dont l'une est attenante à une salle de bain avec wc, une autre est elle aussi attenante à une pièce d'eau avec wc. Pour les deux autres, un espace entre elles pourrait être réutilisé, comme avant, en salle d'eau sachant que les arrivées d'eau et évacuations y sont en attente.


Quant au deuxième et dernier niveau, il distribue deux chambres supplémentaires avec la même possibilité que l'étage inférieur d'y créer une salle d'eau voire deux puisqu'il y a également un grenier qui, si l'espace vous manque, pourrait également être aménagé. Vous l'aurez compris lors du visionnage des photos, cette magnifique maison familiale va nécessiter quelques travaux. Côté toiture, c'est déjà fait (2021), les menuiseries du deuxième étage ont été changées également et la chaudière Frisquet à production d'eau chaude date de 2024.


Pour la partie extérieure, le bien dispose d'un double garage de plus de 30 m2 avec un accès par l'arrière ce qui vous permettra de passer les poubelles, vélos, ..... via cet accès sans traverser toute la maison. Pour le stockage, pas d'inquiétude, la maison est excavée sur quasiment toute sa superficie. La cave est propre, saine et aérée.


Informations complémentaires: Tout à l'égoût ok, taxe foncière 2067 EUR. Je serais ravie de vous la faire découvrir ......



Prix de vente : 250.000 € frais d'agence inclus à la charge du vendeur


CONTACT : Flavie SERRURIER, Agent Commercial indépendant enregistré au RSAC de Valenciennes n° 839201811 agissant pour le compte de l'agence La Pépite Immobilier. Les informations sur les risques auxquels ce bien est exposé sont disponibles sur le site Géorisques.


Caractéristiques de ce bien

  • Surface 232 m²
  • carrez 232 m²
  • terrain 227 m²
  • 6 chambre(s)
  • 2 salle(s) de bain
  • 1 salle(s) d'eau
  • construit en 1900
  • cuisine séparée (semi-équipée)
  • Chauffage individuel : chaudière (gaz de ville)
  • 2 garage(s)
  • 2 côté(s) mitoyen(s)
  • 3 niveau(x)

Diagnostics énergétiques

Consommation énergétique
A B C D E F G
Emission de gaz à effet de serre
A B C D E F G

Montant estimé des dépenses annuelles d'énergie pour un usage standard est compris entre 5 810 € et 7 920 € . Prix moyens des énergies indexés sur les années 2021, 2022 et 2023 (abonnements compris).

Informations financières

Prix de vente 250 000 € Les honoraires d'agence seront intégralement à la charge du vendeur
Taxe foncière annuelle 2 067 €

Calcul des mensualités

* Champs obligatoires