Sophie Verstraete Négociatrice
Télécharger la fiche
Sous-offre Exclusivité

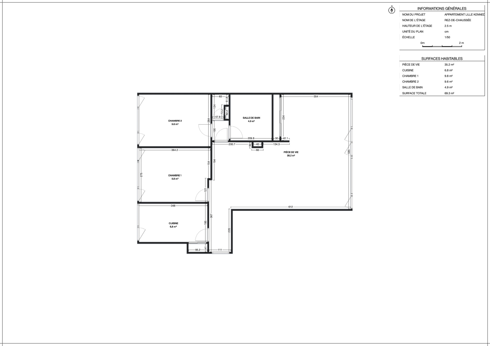
Appartement 3 pièce(s) 2 chambre(s) 71 m²

Lille (59800)
224 000 € Référence VSVAP230000553

A propos de ce bien

Idéalement situé à proximité immédiate de la gare et du centre-ville de Lille, cet appartement T3 de 71 m² loi Carrez offre un emplacement recherché et une belle luminosité.


Au 5ème étage avec ascenseur d’une résidence bien entretenue des années 1970, l’appartement est traversant, ce qui lui apporte beaucoup de lumière tout au long de la journée et une magnifique vue dégagée sur le beffroi.


Il se compose de :

- une pièce de vie lumineuse

- une cuisine équipée IKEA fonctionnelle

- 2 chambres

- de nombreux rangements

- une salle de bains totalement rénovée

Une cave complète ce bien.


Les + de l’appartement :


- étage élevé avec ascenseur

- appartement traversant

- très lumineux

- vue dégagée sur le beffroi

- emplacement central recherché

- nombreux rangements

- cave


Copropriété :


- résidence bien entretenue

- 119 lots

- aucune procédure en cours

Charges de copropriété : 237 € / mois, comprenant :


- chauffage (avec décompteur individuel)

- eau froide

- entretien des parties communes


Appartement idéal pour résidence principale, pied-à-terre ou investissement locatif, dans un secteur très recherché de Lille



Prix de vente : 224 000€ TTC honoraires d'agence inclus (FAI)

Honoraires à la charge du vendeur

Diagnostic de performance énergétique (DPE) :

Classe énergétique : D

Émission de gaz à effet de serre (GES) : D

Date de réalisation : 30/04/2023

Consommation énergie primaire : 170 kWh/m2/an

Consommation énergie finale : 164 kWh/m2/an

Montant estimé des dépenses annuelles d'énergie : entre 640€ et 910€ année de référence : 2021


Un plan pluriannuel de travaux a été voté, garantissant le bon suivi de l’immeuble et permettant d’envisager une amélioration énergétique vers la classe C dans les années à venir.


Mentions légales :

Annonce rédigée sous la responsabilité éditoriale de :

Sophie Verstraete, agent commercial indépendant (sans détention de fonds),
immatriculée au RSAC de Douai n° 794530238
agissant pour le compte de l'agence la Pépite immobilier titulaire de la carte professionnelle n°CPI59072020000045172 délivrée par la CCI Grand Hainaut.

Les informations sur les risques auxquels ce bien est exposé sont disponibles sur le site www.georisques.gouv.fr

Caractéristiques de ce bien

  • Surface 71 m²
  • carrez 71 m²
  • 2 chambre(s)
  • 1 salle(s) de bain
  • construit en 1970
  • cuisine séparée (équipée)
  • Chauffage collectif : chaudière (gaz)
  • exposition Sud-Est
  • 1 niveau(x)
  • 5ème étage
  • 6 étage(s)
  • ascenseur
  • vue Dégagée
  • cave
  • interphone

Diagnostics énergétiques

Consommation énergétique
A B C D E F G
Emission de gaz à effet de serre
A B C D E F G

Montant estimé des dépenses annuelles d'énergie de ce logement pour un usage standard est compris entre 640 € et 910 € . 2021 étant l'année de référence des prix de l'énergie utilisés pour établir cette estimation.

Informations financières

Prix de vente 224 000 € Les honoraires d'agence seront intégralement à la charge du vendeur
Taxe foncière annuelle 1 003 €

Informations financières de copropriété

Copropriété Oui
Lot n° 84
Nombre de lots 119
Quote part annuelle des charges 3 254 €
Plan de sauvegarde Non
Statut du syndic Pas de procédure en cours

Calcul des mensualités

* Champs obligatoires